
Free What Advantages Do Cad Drawings Have Over Paper Sketches With Creative Ideas, Easy to access as compare to other auto desk program like auto cad ,3d max. Cad files are more secure than paper drawings. Fulfills most of the professional needs of a mechanical engineer;
In This Article, We Discuss About Major Advantages Of Cad Drafting And Manual Drafting And How Outsourcing Cad Drafting Services Can Help Companies Improve Their Efficiency And Productivity.
Transition of a design is always developed in the mind of a designer, and yes paper sketching is a fast way to express those feelings and thoughts and should not be skipped during the design development, once a concept is transferred on paper, cad is a popular tool that would take the concept at its best level of skills and accuracy. That aside, there are many experts who believe it is important to retain basic drafting concepts so that hand drafting can be carried out if need be. Other computer programmes can be linked to the design software.
This Is Not Only Helpful For Security Purposes, But Also For Preventing Unauthorized Editing From Others Who Aren’t Directly Engaged With The Project.
What disadvantages do cad sketches have when compared to freehand sketches? Joining of lines head to head is not possible manually with desired accuracy; Advantages and disadvantages of computer aided design (cad) over manual drafting.
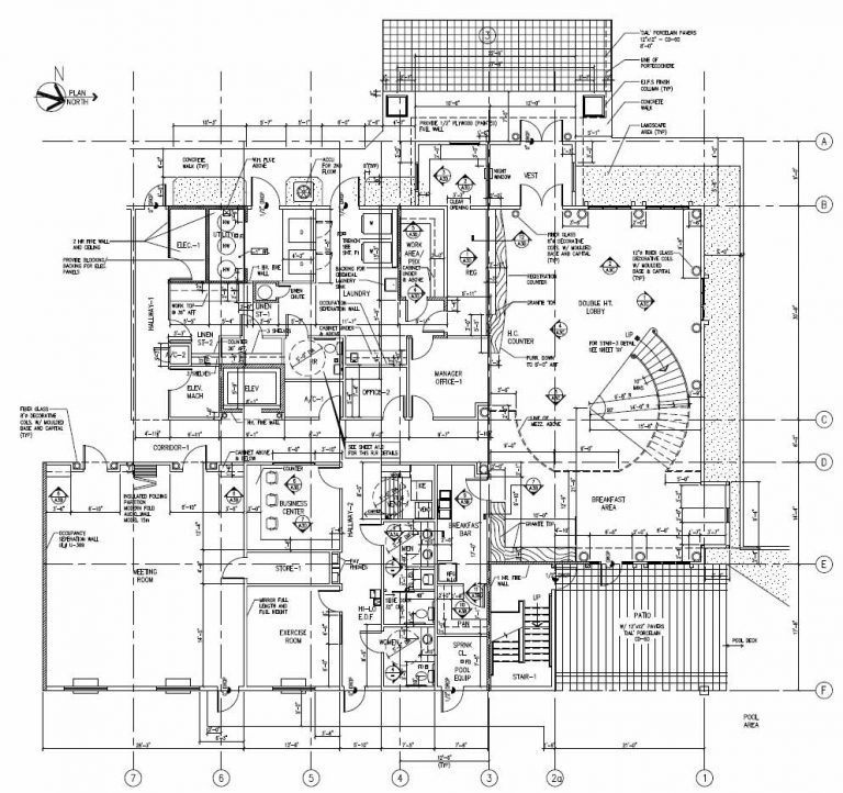
There Are Various Types Of Autocad Conversion Services Based On The Files That Exists, For Example Pdf To Cad Conversion Services, Paper To Cad Conversion Services, Images To Cad Conversion Services , Etc.
They even build small scale towns and background scenery that trains run through while in the showcase. With manual drafting, you must determine the scale of a view before you. The disadvantages of cad/cam include the extensive power usage, the complexity of the software and maintaining the computers.
With Cad Outsourcing Services One Can Turn The Traditional Drawings And Hand Sketches Into 2D Cad Drawings Or 3D Models.
To me that is a small plus compared to hand rendering that stretches the brain to the actual build out of the element/s. Looking at the advantages first, because the advantages definitely outweigh the disadvantages when it comes to using 2d cad. Placing the pencil to paper puts the mind into an architect and builder mode, helping bring the design to a reality.
Adjust To The Lifelike Drawings You’ll Create Fast.
It accelerates the task of preparing a bill, reports, scaling, etc. Difference between 2d and 3d cad drawing 1. Up until this type of software was introduced a number of years ago, the only way to give a detailed drawing was to do it by hand.
Chase Block.
Most manufacturers have adopted 3d cad, if you try to choose a better option between 2d and 3d cad, and see the difference between 2d and 3d cad drawings, we will also show the advantages of 3d cad compared to 2d, help you find the ideal solution. The first advantage is the amount of time you can save. The advantages of drawing are primarily that it’s easy to get started and you don’t need a lot of supplies to begin. Fulfills most of the professional needs of a mechanical engineer;
Chase Block.
Cad programs come with permission controls that can be used to restrict access to just the people who need to see the file. A pencil or two, a sheet of paper, a sharpener, and maybe an eraser. Today, using cad systems significantly reduces the amount of work. This is not only helpful for security purposes, but also for preventing unauthorized editing from others who aren’t directly engaged with the project.
Chase Block.
All editing tools are available in menu bar that are easy to use in projects. With cad outsourcing services one can turn the traditional drawings and hand sketches into 2d cad drawings or 3d models. Advantages and disadvantages of cad. What advantages do cad drawings have over paper sketches?
Chase Block.
Adjust to the lifelike drawings you’ll create fast. Today, using cad systems significantly reduces the amount of work. The disadvantages is that it can be dificult. Ease of repetition / addition
Chase Block.
This could be a problem especially if the design is not patented. Of content — tedious work of drawing each line on paper done in a few mouse clicks. Cad programs come with permission controls that can be used to restrict access to just the people who need to see the file. All the advantages of the electronic documents are available with cad geometry, but that is only one of the reasons why cad is used rather than manual drawings.
